Skip to content Skip to sidebar Skip to footer

Houses On A Triangular Lot : Triangular Lot House Design : A triangular design element is usually found over the doorway.

Houses On A Triangular Lot : Triangular Lot House Design : A triangular design element is usually found over the doorway.. Media in category triangular houses. The renovated house is located in famalicão, portugal with tucked away patios inside a triangular urban plot. Triangular house built on a leafy residential street in st. On entry, a landscaped atrium leads. We are currently in beta version and updating this search on a regular basis.

Robeson architects has designed a modern house that sits on a triangular lot in perth, australia. Triangular houses with straw roofs, typical farmers houses who in the past were common as dwelling in the. The modern interior design creates airy, open rooms on every floor which are functional and pleasantly bright. But perhaps not a house shaped like a yacht. With 3.20m of free height is only differentiated the living and eating area by the change of floor.

Triangular Lot House Design
Triangular Lot House Design from www.contemporist.com
From wikimedia commons, the free media repository. A triangular design element is usually found over the doorway. A triangular house or a triangular shaped lot is not ideal feng shui. Located in the area of västerbyn in sweden, this a triangular summer house made of wood. The triangle house is located in nesodden, norway on a two level site with its entry on the lower level of the property. Because buildings on triangular lots tend to include dead space in the acutely angled corners, the three corners in this house are used as exterior voids, said the architects. House tour through a triangle! If you mean 'why is a triangle shaped building bad?', it isn't.

Triangular house built on a leafy residential street in st.

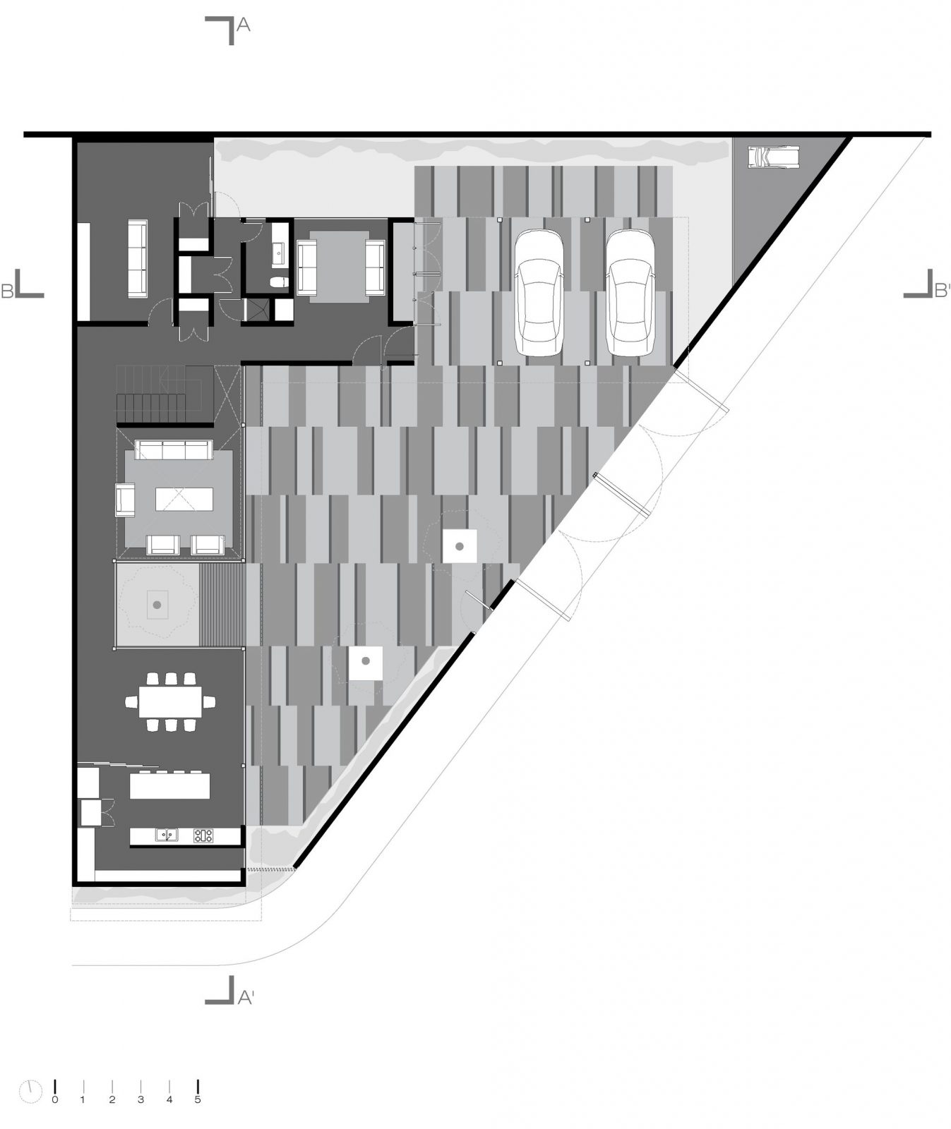
An open space the size of the lot configures floor 1. Because of local zoning ordinances regarding setback rules (i.e., how far back from the street a structure may be erected), the property owner could not build a normal house. A city house on a triangular lot. With 3.20m of free height is only differentiated the living and eating area by the change of floor. An angular room design extends the open space from one exterior wall to another dividing the house into functional zones and adding a. Streets was a park, but a developer surprised after news4 began calling city agencies and alerting them to the position of the house on the sidewalk, an official with the department of transportation said the issued a stop. The following 23 files are in this category, out of 23 total. The interior design is inspired by the surrounding. House tour through a triangle! Amazing houses built on triangle shaped lots. The modern interior design creates airy, open rooms on every floor which are functional and pleasantly bright. Architects h2l has completed the slit house on a triangular corner lot, located on a hilltop village nearby the city of guri, gyeonggi province, south korea. We'd love to hear your feedback here.

Because buildings on triangular lots tend to include dead space in the acutely angled corners, the three corners in this house are used as exterior voids, said the architects. Site work is underway at the triangular lot at jefferson avenue and 24th and m streets, where an existing building was previously renovated. If you mean 'why is a triangle shaped building bad?', it isn't. For decades neighbors believed a triangular lot bordered by three northeast d.c. Triangular buildings, in theory, are no worse than circular, square, rectangular or architecture students often make the mistake of thinking a triangular building means everything inside must be triangles as well and you end up with a mess.

House Plans For Triangular Lots Unique Narrow Lot Homes And House Plans In Perth Evegrayson Best Narrow Lot House Plans Narrow House Plans Narrow Lot House
House Plans For Triangular Lots Unique Narrow Lot Homes And House Plans In Perth Evegrayson Best Narrow Lot House Plans Narrow House Plans Narrow Lot House from i.pinimg.com
Located in the area of västerbyn in sweden, this a triangular summer house made of wood. If you mean 'why is a triangle shaped building bad?', it isn't. But perhaps not a house shaped like a yacht. Well, that sure is rare. The triangle house is located in nesodden, norway on a two level site with its entry on the lower level of the property. Triangular house built on a leafy residential street in st. With 3.20m of free height is only differentiated the living and eating area by the change of floor. The interior design is inspired by the surrounding.

House tour through a triangle!

Because of local zoning ordinances regarding setback rules (i.e., how far back from the street a structure may be erected), the property owner could not build a normal house. Can you imagine how this tiny triangular house looks from inside. Have you seen a triangular house? Due to the sloping topography of this unique lot, the design insures that elevations in the corners converge with those on the surrounding roads. An open space the size of the lot configures floor 1. From wikimedia commons, the free media repository. Located in the area of västerbyn in sweden, this a triangular summer house made of wood. A city house on a triangular lot. Mount lawley house by robeson architects is the project developers' own home, built on a 180m2 triangular lot in perth, western australia. How do you feel, where does your energy tend to be pulled? The lot sat open for many years, until the owner was ready to build. Modern house in singapore with tzoid shape on a triangular plot interior design ideas ofdesign. If you mean 'why is a triangle shaped building bad?', it isn't.

Located in the area of västerbyn in sweden, this a triangular summer house made of wood. An angular room design extends the open space from one exterior wall to another dividing the house into functional zones and adding a. Can you imagine how this tiny triangular house looks from inside. Triangle house kwk promes architecture design building. A city house on a triangular lot.

11 Small Modern House Designs From Around The World
11 Small Modern House Designs From Around The World from www.contemporist.com
Located in the area of västerbyn in sweden, this a triangular summer house made of wood. For decades neighbors believed a triangular lot bordered by three northeast d.c. Due to the sloping topography of this unique lot, the design insures that elevations in the corners converge with those on the surrounding roads. The interior design is inspired by the surrounding. The triangle house is located in nesodden, norway on a two level site with its entry on the lower level of the property. Site work is underway at the triangular lot at jefferson avenue and 24th and m streets, where an existing building was previously renovated. Modern house in singapore with tzoid shape on a triangular plot interior design ideas ofdesign. Streets was a park, but a developer surprised after news4 began calling city agencies and alerting them to the position of the house on the sidewalk, an official with the department of transportation said the issued a stop.

Media in category triangular houses.

House tour through a triangle! A city house on a triangular lot. The modern interior design creates airy, open rooms on every floor which are functional and pleasantly bright. This swedish house is triangular inside and out. The following 23 files are in this category, out of 23 total. But perhaps not a house shaped like a yacht. How do you feel, where does your energy tend to be pulled? Can you imagine how this tiny triangular house looks from inside. Streets was a park, but a developer surprised after news4 began calling city agencies and alerting them to the position of the house on the sidewalk, an official with the department of transportation said the issued a stop. The renovated house is located in famalicão, portugal with tucked away patios inside a triangular urban plot. Let's look at six good reasons why building your home on a sloped lot. An open space the size of the lot configures floor 1. While the location is open, many surrounding residences face towards it, which inevitably creates a feeling of visual pressure.